Nuestros Proyectos
Desarrollamos y participamos en proyectos de edificación aportando soporte técnico especializado, desde la fase de análisis inicial hasta la validación final. Cada proyecto se aborda con un enfoque riguroso, orientado al cumplimiento normativo, la optimización de soluciones y la generación de resultados técnicos fiables y verificables.


Marquesina biapoyada para parking de gruas
San Vicente del Raspeig/Alicante
2014


Ampliación de forjado con grandes luces en interior de vivienda
San Vicente del Raspeig/Alicante
2016


Simulación energética y cálculo del Certificado Energético de vivienda unifamiliar
Pego/Alicante
2018
Calculo de estructura de vivienda unifamiliar
Alicante/Jávea
2019


Cálculo de estructura y Certificado energético de vivienda unifamiliar
Teulada/Alicante
2020


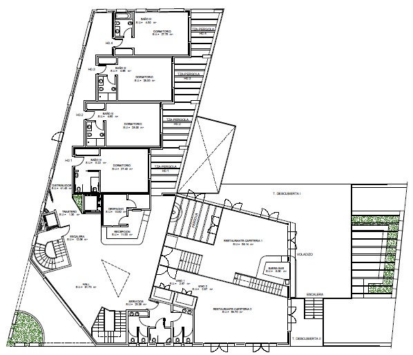
Revisión estructural y cálculo del Certificado energético de Hotel Boutique
Alicante/Jávea
2021


Cálculo del Certificado energético de edificio de 23 apartamentos
Jávea/Alicante
2022


Cálculo del Certificado energético de hotel universitario
San Vicente del Raspeig/Alicante
2023


Cálculo de Certificado Energético de edificio de viviendas
Denia/Alicante
2024


Revisión de estructura y cálculo del Certificado energético de vivienda unifamiliar
Jávea/Alicante
2025
